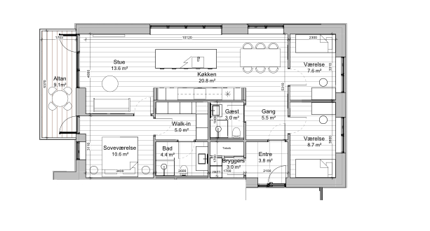
4-værelses lejlighed på 126 m2
Lejlighedstype C 4-værelses lejlighederne findes kun i Pakken (Blok A. Lejlighedens 126 m2 fordeler sig over entré, bryggers, et lyst opholdsrum bestående af kombineret køkkenalrum og stue og 3 værelser. Der er ydermere badeværelse samt walk-in tilstødende til lejlighedens master bedroom med udgang til altan. I forlængelse af opholdsrummet er der både gæstetoilet samt rummelig altan på 9,1 m2.
Velkommen indenfor i denne dejlige 4-værelses lejlighed på 126 m2 i Posthusene Billund. Dette er blot én af 53 lækre moderne ejerlejligheder i et meget attraktivt område. Lejlighederne har gulvarme og køkken fra Svane. I midten af de fire blokke finder du et hyggeligt gårdmiljø.
Bolig informationer
3D panoramabilleder
Vi tager forbehold for indtastningsfejl, priser og oplysninger angivet på denne side. Der kan forekomme justeringer.

Lene Møller Kristensen


