A1

17C st. 2

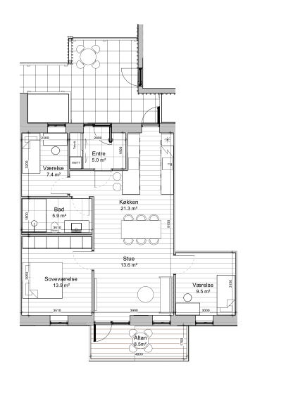
4-værelses lejlighed på 110 m2

Du kan finde de fine A1 4-værelses lejligheder i både Blok A, B, C og D. De fire blokke fordeler sig i Pakken (A), Kuverten (B), Brevet (C) og Frimærket (D). De 110 m2 er fordelt på 3 fine værelser samt et rummeligt køkkenalrum. Det lyse opholdsrum tilstødes af to altaner, hvoraf den ene er på 8,5 m2. Lejligheden har desuden eget bad/toilet, entré samt bryggers.

Velkommen indenfor i denne dejlige 4-værelses lejlighed i Posthusene Billund. Dette er blot én af 53 lækre moderne ejerlejligheder i et meget attraktivt område. Lejlighederne har gulvarme og køkken fra Svane. I midten af de fire blokke finder du et hyggeligt gårdmiljø.

Bolig informationer

Parkering

Ja

Elevator

Ja

Rum

4

Skur

Ja

Pris

2295000

m2

110

Placering

Etage

3D panoramabilleder

Plantegning & oversigtskort

3-værelses lejlighed på 110 m2

Du kan finde A1(type 2) 3-værelses lejlighederne i både Blok A, B, C og D. De fire blokke fordeler sig i Pakken (A), Kuverten (B), Brevet (C) og Frimærket (D). I denne lejlighed er de 110 m2 er fordelt på 2 fine værelser samt et meget rummeligt køkkenalrum. Det lyse opholdsrum tilstødes af to altaner, hvoraf den ene er på 8,5 m2. Lejligheden har desuden eget bad/toilet, entré samt bryggers.

Velkommen indenfor i denne dejlige 3-værelses lejlighed på 110 m2 i Posthusene Billund. Dette er blot én af 53 lækre moderne ejerlejligheder i et meget attraktivt område. Lejlighederne har gulvarme og køkken fra Svane. I midten af de fire blokke finder du et hyggeligt gårdmiljø.

Bolig informationer

Parkering

Ja

Elevator

Ja

Rum

99

Skur

Ja

Pris

2295000

m2

110

Placering

Etage

3D panoramabilleder

Plantegning & oversigtskort

Vi tager forbehold for indtastningsfejl, priser og oplysninger angivet på denne side. Der kan forekomme justeringer.

Lene Møller Kristensen

Kontakt

Tlf: 7665 9400

Mail: 7190@nybolig.dk