D2

17D 4.1

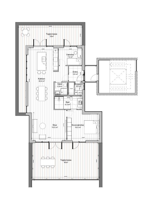
3-værelses lejlighed på 132 m2

Lejlighedstype D2 findes kun i Kuverten (Blok B) og Brevet (Blok C) og er derfor en smule mere eksklusiv – der er ydermere også kun 2 lejligheder af denne type i alt. Lejlighedens 132 m2 fordeler sig over en entré, bryggers, et lyst opholdsrum bestående af kombineret køkkenalrum og stue, 2 værelser samt toilet/bad. Fra lejlighedens opholdsrum har du både udgang til lejlighedens tagterrasse på 45 m2 og den modsatvendte altan.

Velkommen indenfor i denne dejlige 3-værelses lejlighed på 132 m2 i Posthusene Billund. Dette er blot én af 53 lækre moderne ejerlejligheder i et meget attraktivt område. Lejlighederne har gulvarme og køkken fra Svane. I midten af de fire blokke finder du et hyggeligt gårdmiljø.

Bolig informationer

Parkering

Ja

Elevator

Ja

Rum

3

Skur

Ja

Pris

5195000

m2

132

Placering

Etage

Plantegning & oversigtskort

3D panoramabilleder

Vi tager forbehold for indtastningsfejl, priser og oplysninger angivet på denne side. Der kan forekomme justeringer.

Lene Møller Kristensen

Kontakt

Tlf: 7665 9400

Mail: 7190@nybolig.dk

img[usemap] { border: none; height: auto; max-width: 100%; width: auto; } #custom_block1_wrapper{ display:none; } #custom_block2_wrapper{ display:none; } #custom_block3_wrapper{ display:none; } #custom_block4_wrapper{ display:none; }