5-værelses lejlighed på 133 m2
Du kan finde B1 5-værelses lejlighederne i både Blok A, B, C og D. De fire blokke fordeler sig i Pakken (A), Kuverten (B), Brevet (C) og Frimærket (D). Lejlighedens 133 m2 fordeler sig over en entré, bryggers, et lyst opholdsrum bestående af kombineret køkkenalrum og stue og 4 værelser. Der er ydermere badeværelse samt walk-in tilstødende til lejlighedens master bedroom samt et gæstetoilet i forlængelse af opholdsrummet.
Velkommen indenfor i denne dejlige 5-værelses lejlighed på 133 m2 i Posthusene Billund. Dette er blot én af 53 lækre moderne ejerlejligheder i et meget attraktivt område. Lejlighederne har gulvarme og køkken fra Svane. I midten af de fire blokke finder du et hyggeligt gårdmiljø.
Bolig informationer
3D panoramabilleder
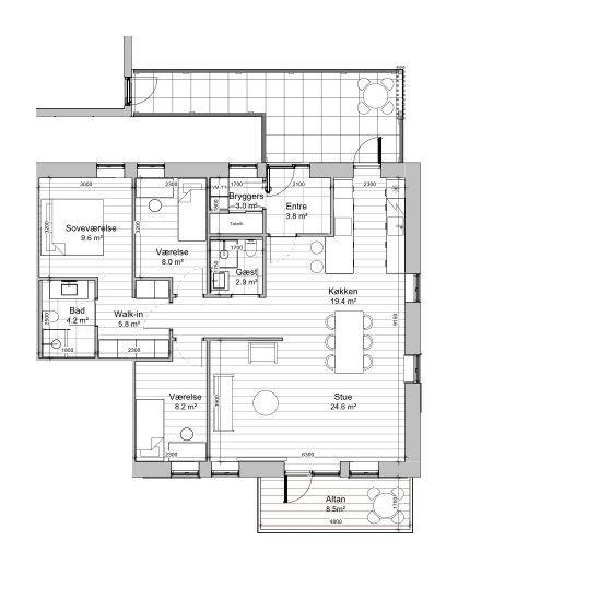
4-værelses Lejlighed på 133 M2
Du kan finde B1 type 2 4-værelses lejlighederne i både Blok A, B, C og D. De fire blokke fordeler sig i Pakken (A), Kuverten (B), Brevet (C) og Frimærket (D). Lejlighedens 133 m2 fordeler sig over en entré, bryggers, et lyst opholdsrum bestående af kombineret køkkenalrum og stue og 3 værelser. Der er ydermere badeværelse samt walk-in tilstødende til lejlighedens master bedroom samt et gæstetoilet i forlængelse af opholdsrummet.
Velkommen indenfor i denne dejlige 4-værelses lejlighed på 133 m2 i Posthusene Billund. Dette er blot én af 53 lækre moderne ejerlejligheder i et meget attraktivt område. Lejlighederne har gulvarme og køkken fra Svane. I midten af de fire blokke finder du et hyggeligt gårdmiljø.
Bolig informationer
3D panoramabilleder
Vi tager forbehold for indtastningsfejl, priser og oplysninger angivet på denne side. Der kan forekomme justeringer.

Lene Møller Kristensen



