B3

17D 2.1

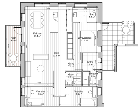
5-værelses lejlighed på 135 m2

Lejlighedstype B3 5-værelses lejlighederne findes kun i Pakken (Blok A) og Frimærket (Blok D). Lejlighedens 135 m2 fordeler sig over entré, bryggers, et lyst opholdsrum bestående af kombineret køkkenalrum og stue og 4 værelser. Der er ydermere badeværelse tilstødende til lejlighedens master bedroom med udgang til altan. I forlængelse af opholdsrummet er der både gæstetoilet samt rummelig altan på 8,5 m2.

Velkommen indenfor i denne dejlige 5-værelses lejlighed på 135 m2 i Posthusene Billund. Dette er blot én af 53 lækre moderne ejerlejligheder i et meget attraktivt område. Lejlighederne har gulvarme og køkken fra Svane. I midten af de fire blokke finder du et hyggeligt gårdmiljø.

Bolig informationer

Parkering

Ja

Elevator

Ja

Rum

5

Skur

Ja

Pris

3795000

m2

135

Placering

Etage

3D panoramabilleder

Plantegning & oversigtskort

 

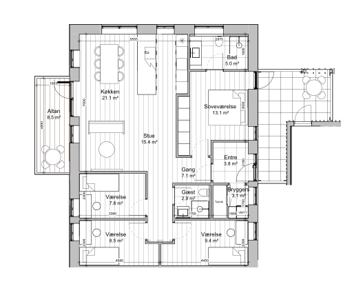
4-værelses lejlighed på 135 m2

Lejlighedstype B3 (Type 2) 4-værelses lejlighederne findes kun i Pakken (Blok A) og Frimærket (Blok D). Lejlighedens 135 m2 fordeler sig over entré, bryggers, et rummeligt, lyst opholdsrum bestående af kombineret køkkenalrum og stue og 3 værelser. Der er ydermere badeværelse tilstødende til lejlighedens master bedroom med udgang til altan. I forlængelse af opholdsrummet er der både gæstetoilet samt rummelig altan på 8,5 m2.

Velkommen indenfor i denne dejlige 4-værelses lejlighed på 135 m2 i Posthusene Billund. Dette er blot én af 53 lækre moderne ejerlejligheder i et meget attraktivt område. Lejlighederne har gulvarme og køkken fra Svane. I midten af de fire blokke finder du et hyggeligt gårdmiljø.

Bolig informationer

Parkering

Ja

Elevator

Ja

Rum

4

Skur

Ja

Pris

3795000

m2

135

Placering

Etage

3D panoramabilleder

Plantegning & oversigtskort

 

Vi tager forbehold for indtastningsfejl, priser og oplysninger angivet på denne side. Der kan forekomme justeringer.

Lene Møller Kristensen

Kontakt

Tlf: 7665 9400

Mail: 7190@nybolig.dk